Перейти к содержимому
Строительство каркасных домов в Новосибирске

СНТ "Лазурит"

  • Начало строительства:
    август 2020 г
  • Окончание строительства:
    октябрь 2020 г

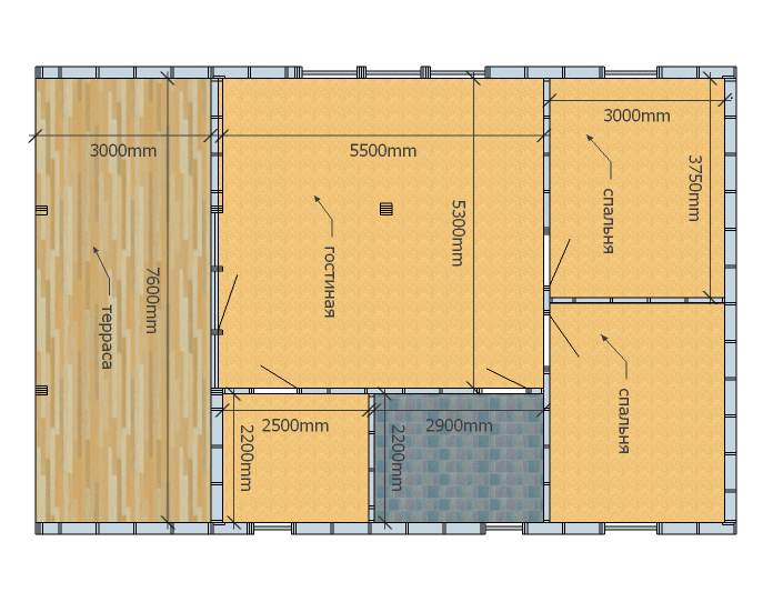
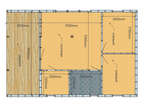
Каркасный дом в стиле Барнхаус находящийся в СНТ "Лазурит". Фундамент винтовые сваи, пирог стен и цокольного перекрытия 200 мм (200 мм базальтовая вата), кровля профлист, фасад профлист/имитация бруса, внутренняя отделка вагонка "штиль".

СНТ "Лазурит"

  • Начало строительства:
    август 2020 г
  • Окончание строительства:
    октябрь 2020 г

Каркасный дом в стиле Барнхаус находящийся в СНТ "Лазурит". Фундамент винтовые сваи, пирог стен и цокольного перекрытия 200 мм (200 мм базальтовая вата), кровля профлист, фасад профлист/имитация бруса, внутренняя отделка вагонка "штиль".

Закажите обратный звонок
Ваши данные защищены