Перейти к содержимому
Строительство каркасных домов в Новосибирске

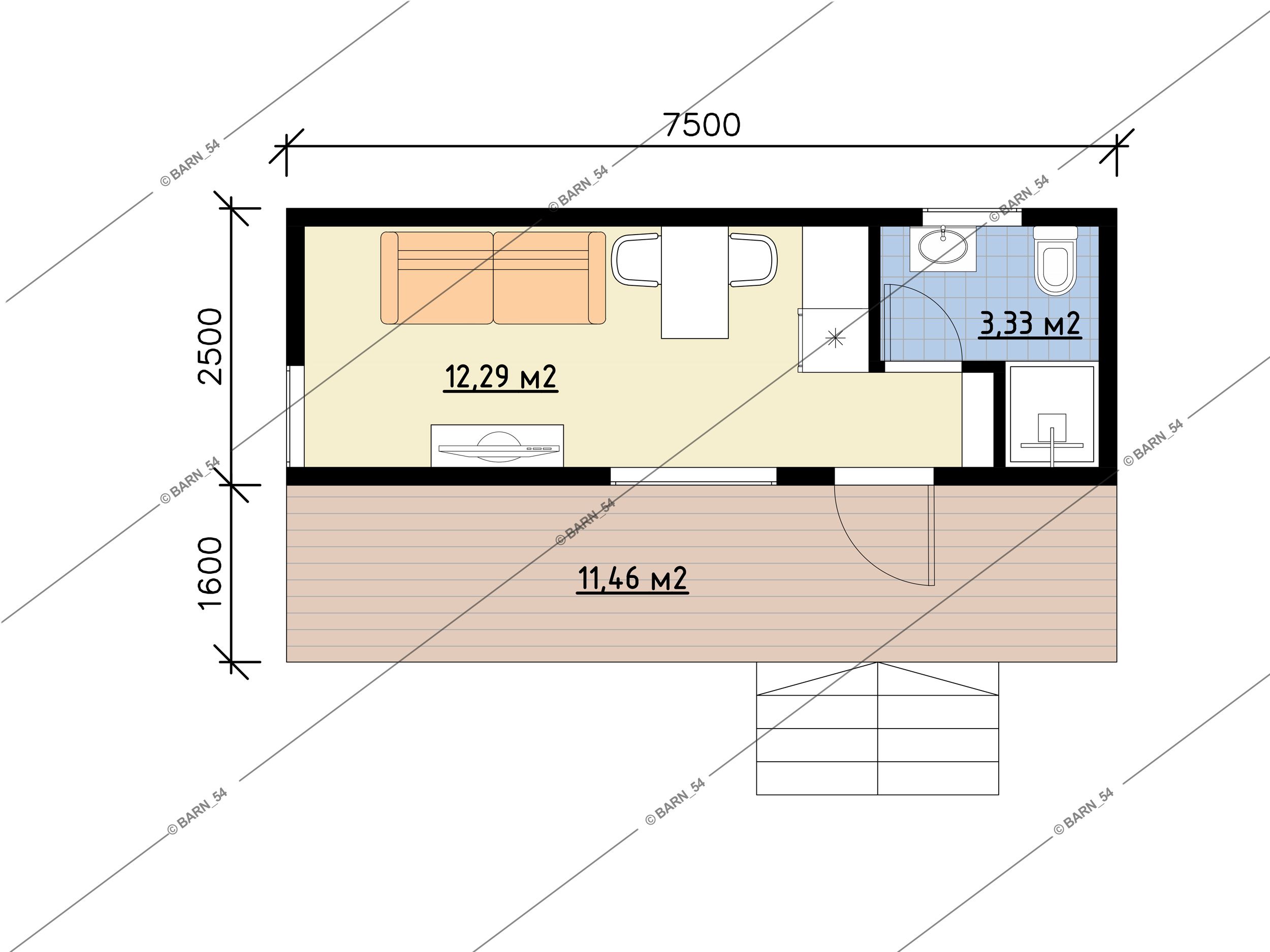
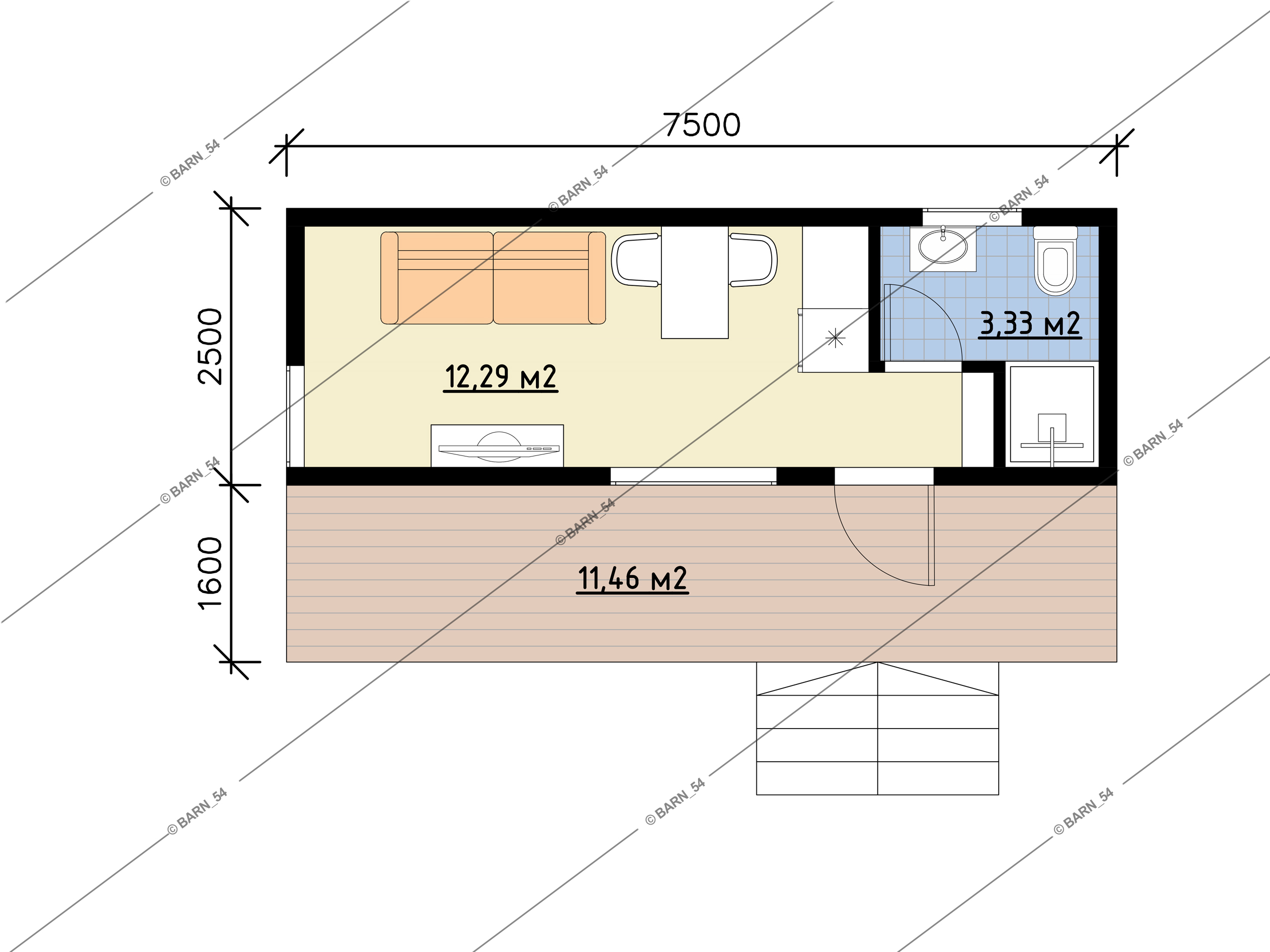
Модульный дом MDB"18 (2,5x7,5м) с террасой


900 000 руб.

Описание*:

Силовой каркас : калиброванная доска камерной сушки .

Тепловая изоляция/пароизоляция/ветровлагозащита: штапельное стекловолокно URSA Terra 34 PN PRO ( толщина слоя: пол и кровля - 150 мм, стены - 100 мм). Влаго-ветрозащита - гидро-ветрозащитная мембрана Изоспан AQ proff,  пароизоляция - Finka Premium Plus – многослойная соэкструзионная пленка из первичных и металлоценовых полиэтиленов 200 мкм, проклейка стыков армированная клейкая лента Tectis Sitko Flex

 →Фасад и кровля: оконные отливы и откосы из металла 0,5 мм, планкен прямой сорт АБ с покраской (цвет на выбор), кровельный и фасадный материал кликфальц 0,5 мм. 

→ Внутренняя отделка: стены вагонка "штиль" сорта АБ с покраской (цвет на выбор), полы черновые — OSB-3  в сухих помещениях, санузлах и влажных помещениях ЦСП

→Оконные и дверные системы: кашированные оконные и дверные блоки из 4-камерных профильных систем VEKA WHS 60 и энергоэффективных стеклопакетов. 

*материалы и комплектующие могут быть изменены , по согласованию.

Стоимость доставки дома зависит от его площади, удаленности и особенностей участка. При необходимости (погодные условия, особенности участка) может потребоваться аренда дополнительной спецтехники — манипуляторов, кранов-вездеходов, тракторов для расчистки территории от снега и т. д. Все эти расходы оплачивает заказчик.

Оплачивается отдельно:

  • Веранды/террасы в стоимость дома не включены и рассчитываются отдельно
  • Фундамент
  • Аренда дополнительной спецтехники   (кран, бульдозер, генераторы, строительные леса при большом перепаде высот и т. д.)
  • Организация водоснабжения, канализации, электричества на участке.
Оплата
После заключения договора вы вносите 70% предоплаты на расчетный счет. Приемка дома заказчиком осуществляется в цехе или удаленно, с помощью фотовидеофиксации. После этого выплачиваете оставшиеся 30%. После монтажа дома на участке вы подписываете окончательный акт приемки, и с этого дня на дом распространяются гарантийные обязательства.

Сроки
О наличии домов на складе уточняйте по телефону. Стандартные сроки поставки, которые мы фиксируем в договоре — 120 дней. Стандартные сроки монтажа дома на участке — 5−14 дней, в зависимости от площади дома и комплектации. Удаленность, рельеф участка, подъездные пути, комплектация дома, погодные условия могут внести свои коррективы.

Гарантии
Мы уверены в качестве производимых нами домов, поэтому даем 5-летнюю гарантию на конструкционную прочность каркаса и 1 год на все скрытые дефекты, электропроводку, сантехнику и отделку.

1 200 000 руб.

Описание*:

Силовой каркас : калиброванная доска камерной сушки .

Тепловая изоляция/пароизоляция/ветровлагозащита: штапельное стекловолокно URSA Terra 34 PN PRO ( толщина слоя: пол и кровля - 150 мм, стены - 100 мм). Влаго-ветрозащита - гидро-ветрозащитная мембрана Изоспан AQ proff,  пароизоляция - Finka Premium Plus – многослойная соэкструзионная пленка из первичных и металлоценовых полиэтиленов 200 мкм, проклейка стыков армированная клейкая лента Tectis Sitko Flex

Фасад и кровля: оконные отливы и откосы из металла 0,5 мм, планкен прямой сорт АБ с покраской (цвет на выбор), кровельный и фасадный материал кликфальц 0,5 мм. 

→ Терраса: террасная доска сорта АБ с покраской (цвет на выбор)

→ Внутренняя отделка: стены вагонка "штиль" сорта АБ с покраской (цвет на выбор), полы черновые — OSB-3  в сухих помещениях, санузлах и влажных помещениях ЦСП, финишные полы (сан. узел): керамогранит, (комната, коридор): ламинат, дверь межкомнатная, освещение.

→Оконные и дверные системы: кашированные оконные и дверные блоки из 4-камерных профильных систем VEKA WHS 60 и энергоэффективных стеклопакетов.

→ Инженерные сети: скрытая разводка эл. кабеля, накладные выключатели и розетки, Распределительный щит, скрытая разводка труб ГВС и ХВС, скрытая разводка канализации, подключение к внешним коммуникациям (при условии заблаговременного их подведения в соответствии с планом инженерных сетей).

→ Теплый пол: тонкий кабельный мат (сан. узел), саморегулируемый пленочный теплый пол (комната, коридор) с терморегуляторами.

→ Сантехника: унитаз-компакт Sanita Luxe, душевая кабина Sensea Cube, полотенцесушитель электрический Арго Орион.

*материалы и комплектующие могут быть изменены , по согласованию.

Стоимость доставки дома зависит от его площади, удаленности и особенностей участка. При необходимости (погодные условия, особенности участка) может потребоваться аренда дополнительной спецтехники — манипуляторов, кранов-вездеходов, тракторов для расчистки территории от снега и т. д. Все эти расходы оплачивает заказчик.

Оплачивается отдельно:

  • Веранды/террасы в стоимость дома не включены и рассчитываются отдельно
  • Фундамент
  • Аренда дополнительной спецтехники   (кран, бульдозер, генераторы, строительные леса при большом перепаде высот и т. д.)
  • Организация водоснабжения, канализации, электричества на участке.
Оплата
После заключения договора вы вносите 70% предоплаты на расчетный счет. Приемка дома заказчиком осуществляется в цехе или удаленно, с помощью фотовидеофиксации. После этого выплачиваете оставшиеся 30%. После монтажа дома на участке вы подписываете окончательный акт приемки, и с этого дня на дом распространяются гарантийные обязательства.

Сроки
О наличии домов на складе уточняйте по телефону. Стандартные сроки поставки, которые мы фиксируем в договоре — 120 дней. Стандартные сроки монтажа дома на участке — 5−14 дней, в зависимости от площади дома и комплектации. Удаленность, рельеф участка, подъездные пути, комплектация дома, погодные условия могут внести свои коррективы.

Гарантии
Мы уверены в качестве производимых нами домов, поэтому даем 5-летнюю гарантию на конструкционную прочность каркаса и 1 год на все скрытые дефекты, электропроводку, сантехнику и отделку.