Перейти к содержимому
Проекты
Домокомплекты
Модульные дома
Малые архитектурные формы
Услуги и стоимость
Галерея
8 983 003-67-63
О компании
Полезные статьи
Контакты
Строительство каркасных домов
в Новосибирске
8 983 003-67-63
Проекты
Домокомплекты
Модульные дома
Малые архитектурные формы
Услуги и стоимость
Галерея
Готовые проекты
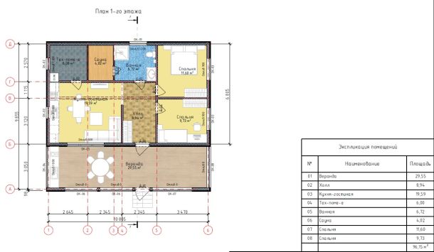
Проект "Клинкен-3"
Размеры дома
10,8х6,8 м
Площадь дома
96 кв.м
Количество комнат
7
Количество спален
2
План помещения
Просторные комнаты и терраса
Проект "Клинкен-3"
Как это выглядит
Фотогалерея проекта
Понравился проект?
Вы можете узнать точную стоимость и сроки реализации проекта прямо сейчас
Узнать стоимость
Узнать стоимость
Закажите обратный звонок
Позвоните мне
Ваши данные защищены